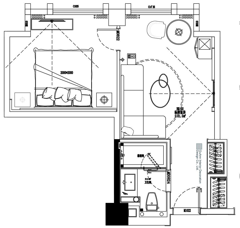
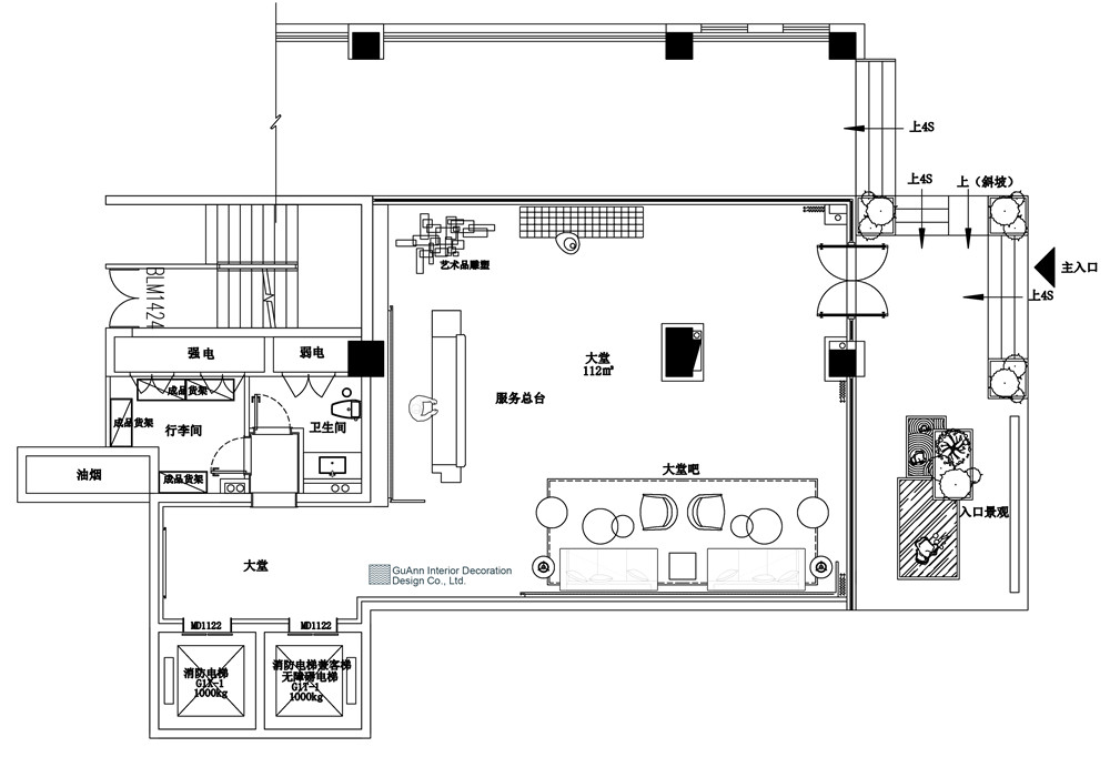
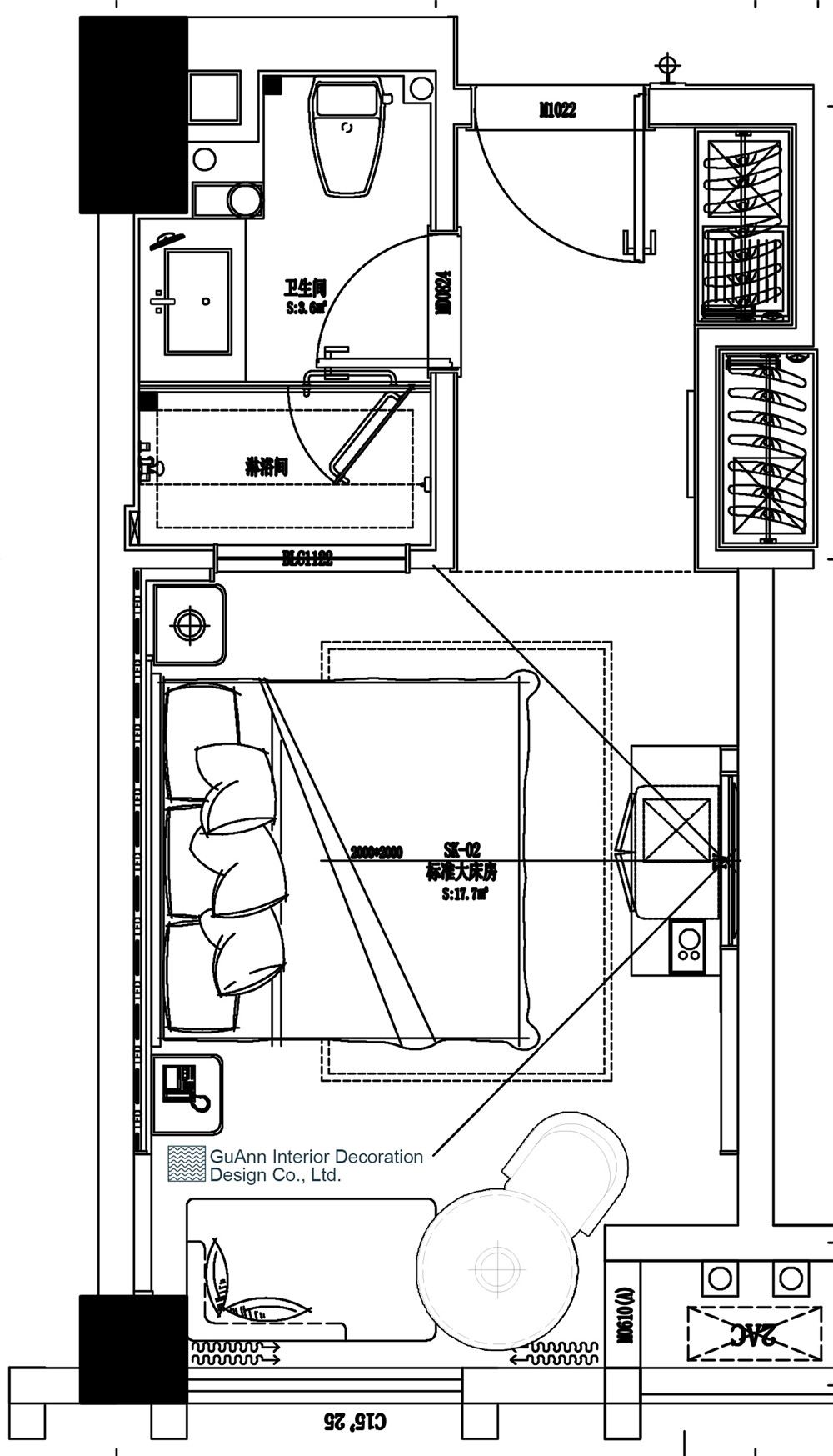
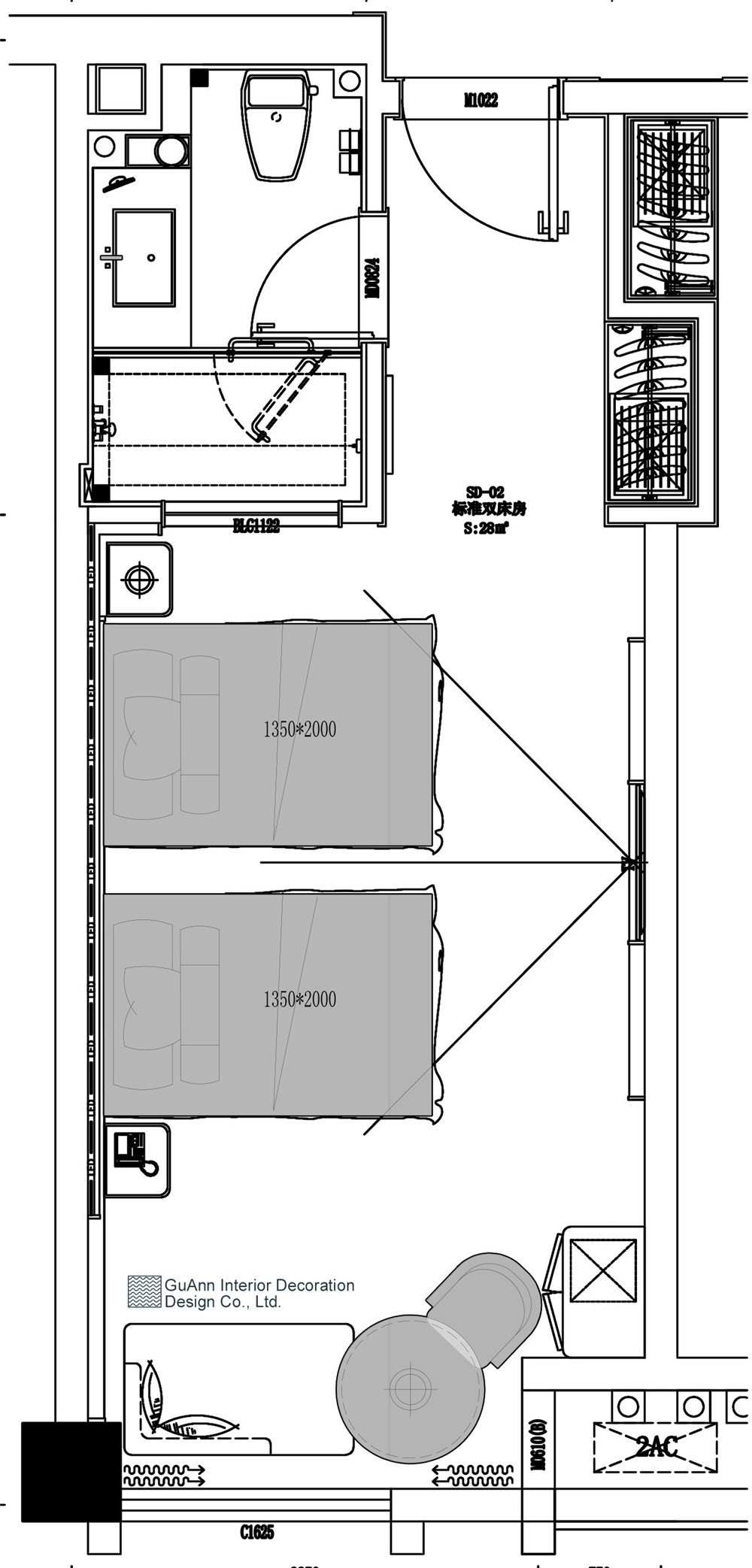
铜梁酒店

时间     |      2020-01-03 11:07:59          857     |      文章来源:本站


资讯

大型办公楼设计出发点和设计理念是关键

大型企业办公室设计和企业的业主是息息相关,在项目···

2025-05-12     

办公室装修前期规划的重要性

一个好的办公室设计不仅体现在质量上,也体现在空间···

2025-05-12     

酒吧设计沙发摆放布局有哪些方式

酒吧作为一处文化与时尚俱存的娱乐消费场所,在酒吧···

2025-04-07     

铜梁酒店

酒店   |    2020-01-03 11:07:59   

文章来源:本站


Newest Work
商业

河南武陟华洋院子会所

2024-09-29       

地产

普罗理想国别墅

2022-02-16       

版权所有:谷岸空间营造 | 营业执照公示 | 备案号:豫ICP备19046878号-1 技术支持:三猫网络

   河南省郑州市金水东路80号绿地新都会九号楼1510号